[罗戈导读]据资料显示,我国的冷链物流起步于上世纪60年代,为保证市场供应、调节淡旺季的需求,在原产地、枢纽城市兴建大型冷库,自上世纪90年代,终端零售业的兴起,市场对于冷链的需求进一步扩大,由此现代冷链在国内获得了发展的契机,同时也推动了冷链各环节的设备与技术开发、制造与建设,国内物流装备行业也随着冷链行业发展,向其提供了各类型的仓储系统。

据资料显示,我国的冷链物流起步于上世纪60年代,为保证市场供应、调节淡旺季的需求,在原产地、枢纽城市兴建大型冷库,自上世纪90年代,终端零售业的兴起,市场对于冷链的需求进一步扩大,由此现代冷链在国内获得了发展的契机,同时也推动了冷链各环节的设备与技术开发、制造与建设,国内物流装备行业也随着冷链行业发展,向其提供了各类型的仓储系统。

冷库的建设、使用成本远远高于普通仓库,传统的冷库为保证空间合理分配、降低能耗,多数采用楼库结构,多楼层、多隔间形式在一定程度上解决了业主的需求,此类冷库一般使用巧固架以增加库内的利用率。随着零售市场需求的旺盛,对冷链行业仓储的要求越来越高,自上世纪末,单体大型冷库逐渐成为主流,物流装备行业针对冷库的特性,提供了驶入式货架、穿梭式货架等多种密集存储的解决方案,但仍未更好解决冷库无人化、智能化、自动化、信息化的作业需求,由于叉车反复出入冷库作业,不仅产生较大的制冷能量损失同时也给库内商品的品质保证带来一定隐患,并缺乏有效的货位管理,很容易造成货品积压引起较大浪费,由此,为适应市场需要,以天津万事达物流装备有限公司为代表的物流装备行业厂商,十多年以来一直深耕于高密度自动化存取技术的开拓创新,陆续向冷链行业推出适用的系统解决方案。
穿梭式立体库系统---单机版穿梭车在货架系统的应用,解决了驶入式货架必须由叉车进入货架区域存取托盘而带来的风险,但仍不属于自动化的解决方案,物流装备厂商借以穿梭车的特性,以巷道式堆垛机进行X轴、Z轴方向的物料搬运,这样的解决方案实现了冷库内的自动化、无人化作业的同时,也极大提高了冷库的空间利用率,合理的穿梭式立体库系统方案布局,空间利用率一般会超过80%。在实际出入库效率较低且未来对效率需求较恒定的情况下,穿梭式立体库系统的性价比尤为突出,并且巷道式堆垛机经过几十年的发展,性能、质量均较稳定,极少发生由于堆垛机故障导致冷库作业瘫痪的状况。


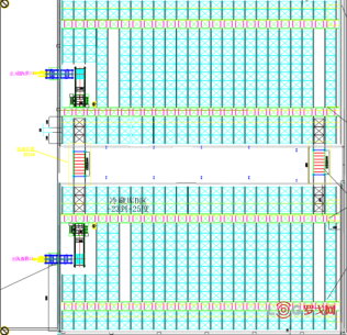
华中某水产企业自用冷库
方案说明:
1、存储货型尺寸为1200x1000x1525mm,货盘重1000Kg。
2、货位数共计11398个,库房的利用率达到了85%。
3、规库房净高度15.7m,设计7层穿梭车轨道。
4、本案右侧内月台设计2个入库口,采用电动地牛入库;外月台设计2个出库口,采用叉车作业,货物出库产生的空托盘由叉车送往生产线,且无拆零尾盘回库处理。
5、本案匹配2台巷道堆垛机,均可以实现出入库作业功能,4台网络版穿梭车及出入库输送线,满足出入库38盘/小时的作业能力。
6、此方案在自动化密集储存系统方案中以较低的投入实现了客户效率需求,并较充分的利用了冷库内的空间,同时库内实现了无人化、自动化、智能化、信息化的现代化作业方式。
子母车高密度存储系统---由于巷道式堆垛机的作业效率恒定,穿梭式立体库系统难以解决效率需求较大、对未来作业效率有拓展要求的方案,子母车高密度存储系统有效的解决了这两个问题。由母车完成X轴的物料搬运,由提升机完成Z轴的物料搬运,子车、母车、提升机通过WCS调度协同作业,各流程之间互不等待,极大提升设备利用率,有效提高系统整体作业效率。子母车高密度存储系统的空间利用率可达90%,可根据业主的远、近期作业效率需求合理规划设备数量,根据近期效率需求配置子母车、提升机数量,未来可根据产能、销售额的增涨再配置子母车等硬件设备达到增加作业效率的目的。子母车通过提升机到达任意层作业,一台母车可同时对应多台子车同层作业,如果选择换层/货物一体提升机还可进一步节约空间。相对于穿梭式立体库系统,子母车高密度存储系统具备高效、可拓展等特性,自动化硬件设备之间互为故障备份,不会由于单一设备故障造成系统或单巷道不能运作,更可通过转驳设备达到母车多巷道共享功能。
子母车的供电方式可根据实际需要予以配置,母车可采用滑触线、电池供电方式,子车可采用电池、超级电容供电方式,灵活多样的供电方式适用于多种作业场景,比如母车采用滑触线、子车采用超级电容的供电配置尤其适用生产型企业流水线的作业方式,可满足365天*24小时不间断作业模式。

华北某生产型企业冷库
方案说明:
1、平面布局分为3进深、22进深3个存储区域,四层轨道。
货位数:2900个,90%库房利用率,
可存放SKU:≥120个,单巷道可存放多品规、多批次,尽可能最大化利用货位;
2、 效率:满足入库效率75盘/小时,出库效率140盘/小时;
3、 本案匹配:8套子母车、5台货物提升机、2台换层提升机、输送系统一套、WMS\WCS系统一套。
4、本案母车采用滑触线供电、子车采用超级电容供电,满足客户365*24小时不间断作业模式。

5、该项目的经济效益分析:

四向托盘穿梭车高密度存储系统---四向托盘穿梭车近几年在食品、医药、冷链等行业得到较好的应用,拥有X轴、Y轴物料搬运能力,灵活性较高,尤其适用于异形仓库布局,适用高密集储存同时也适用于品规较多、批量较少的作业模式,对于第三方冷链物流企业也可满足其使用需求。同层运行多台四向托盘穿梭车是四向托盘穿梭车高密度存储系统基本运作模式,完善的货位管理(WMS)水平以及设备调度能力(WCS)保证整体系统稳定、高效运行。为避免四向托盘穿梭车与提升机作业等待,提升机与货架之间设计缓存输送线,四向托盘穿梭车、提升机均将托盘交接给缓存输送线进行转驳作业,从而提升作业效率。

在总体规划中,可充分发挥四向托盘穿梭车的优势,可通过打通墙体、连廊等方式将各个库区连接,四向托盘穿梭车通过系统调配进入任意库区,以达到设备共享的目的。

穿堂区域在以往的设计中往往会采用输送线、RGV等设备进行托盘输送,四向托盘穿梭车在此区域也可作为平面搬运设备,从而进一步节约业主的采购成本。

西南某冷链物流企业冷库
方案说明
1.托盘含货物规格1200*1100*1540 mm ,1200kg/托;
2.方案平面布局进深划分12/3进深, 采用先进后出模式,货架立面布局69层轨道,总计货位数总计13619个 实现了88%库房利用率;
3.本案匹配6台四向托盘穿梭车,效率满足112盘/小时,可实现24小时不间断作业的出入库作业;
4.本案实现库区之间四向托盘穿梭车共用模式,其中某个库区集中入库出入库时,系统调配其他库区四向托盘穿梭车集中作业,从而减少了设备投入,同时增加了单库区的作业效率;
5.本案为了避免制冷量散失,将库房分割成大小不等的多个小库房,产品存储量较小时可利用小库区存储;
6.本方案最大化利用库内空间,穿堂区域设计双向四向托盘穿梭车运行轨道,利用四向托盘穿梭车作为穿堂区域的平面搬运设备,满足效率的同时减少了业主的资金投入。

穿梭式立体库、子母车系统、四向托盘穿梭车系统是目前冷链行业常见的高密度储存解决方案,实现了冷库无人化、自动化、智能化、信息化的作业模式,出、入库口采用缓冲间控制空气交换,极大降低能量损失,冷链企业可以最少的建筑面积获取更多的空间利用率,通过上位软件系统进行货位管理,降低货品库内损耗。
随着市场细化,冷库逐渐区分为企业自用存储库、自用配送库、第三方冷链物流库等多种功能,对仓库管理软件(WMS)、控制软件(WCS)的适用性也提出更高的要求,以天津万事达为例,组建多年的软件研发团队已成功实施了数十座冷库高密度存储系统项目,充足的项目经验反哺其为更多的冷链企业提供更优秀的解决方案;自主研发的核心硬件经多年技术积累,性能稳定可靠,采用的电池技术已支持在-25℃环境中平稳充、放电;穿梭车、子车、四向托盘穿梭车均支持巷道内柔性货位分配功能,使得单一巷道可存取多品规、多批次的货物,进一步提升整体系统的货位利用率;在近期即将完成实施的某第三方冷链企业高密度存储项目中,专项开发的APP支持该第三方冷链企业的客户在手机端直接查询库存状态、下达出入库订单。
“兔子”啃“莲藕”,快递生鲜牌怎么打?
1020 阅读
快递大变革:“纳税新规”落地、社保加强征管,这次反内卷谁会被淘汰?
980 阅读
京东物流在江苏成立供应链科技公司
693 阅读物流企业大客户销售预测总翻车?攻略来了
729 阅读戈壁征途,极兔护航!极兔成为戈20官方指定物流合作伙伴
653 阅读顺丰同城推出商超百货即配解决方案
547 阅读Shopee调整跨境直邮现货商品发货政策
605 阅读2025年京东物流贵州大件宅配、白云区资源招商
528 阅读京东物流2025运输业务招标
534 阅读美团闪购联合华为共建“骑手补给站”
508 阅读